Limassol, Agia Triada
The Gardens Residence
Description
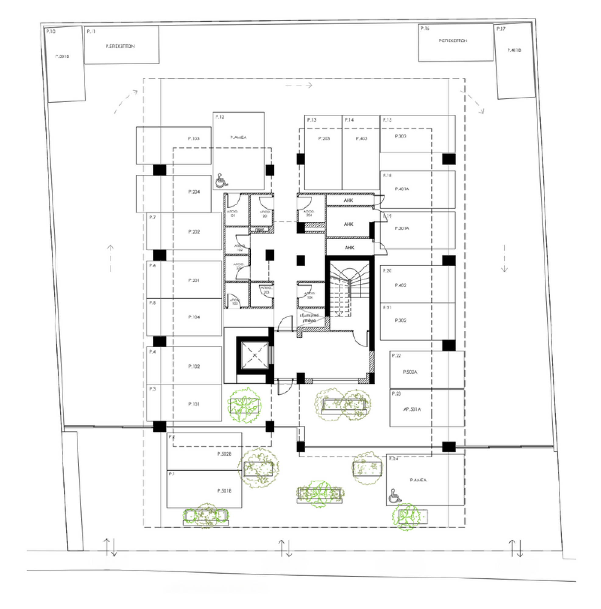
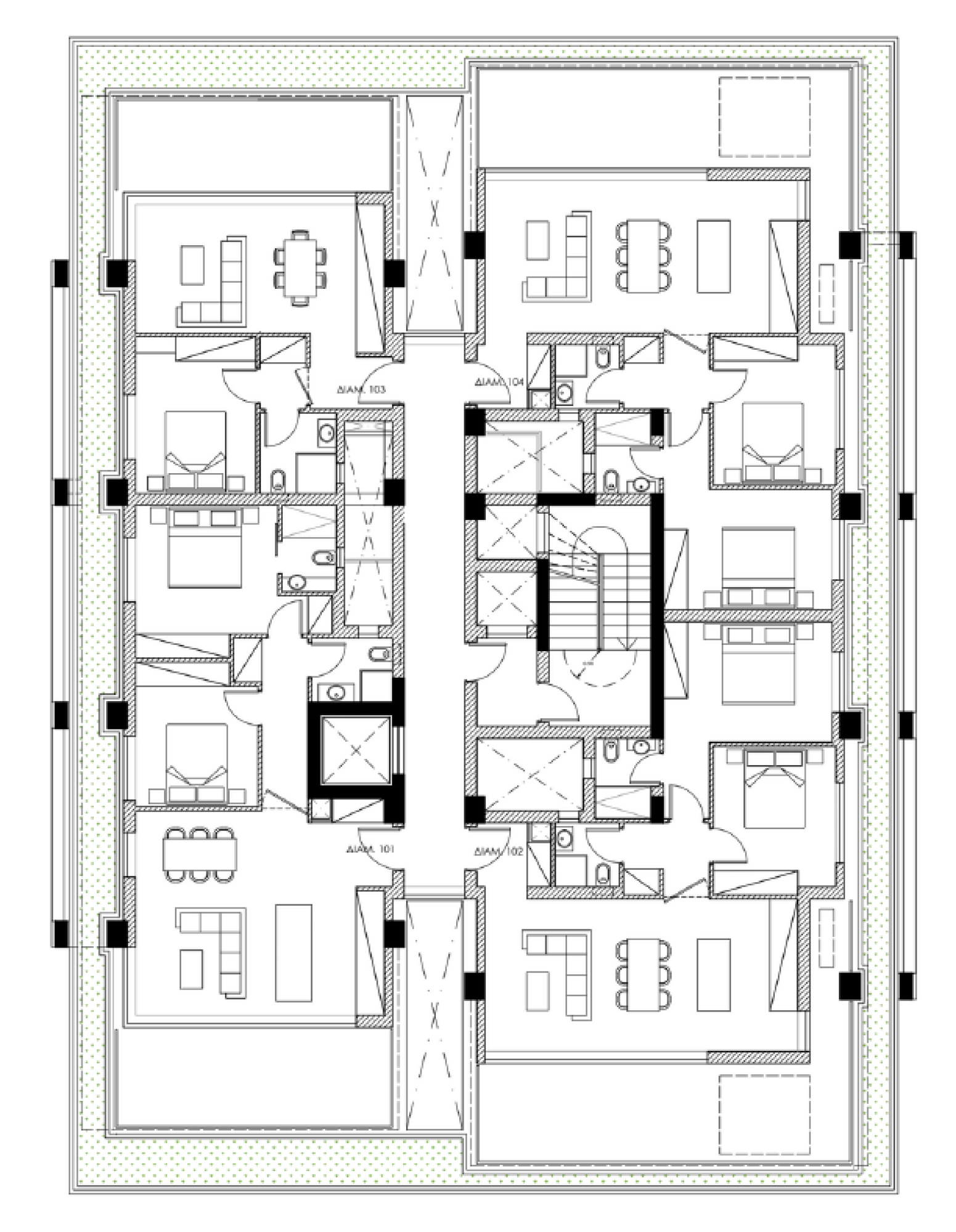
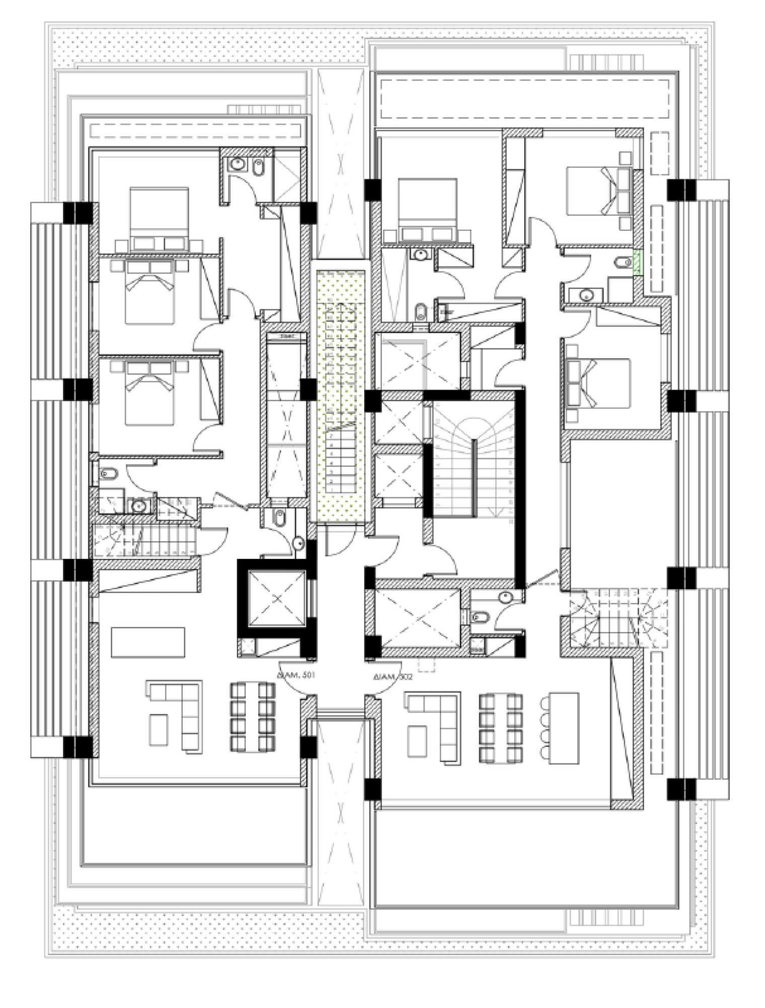
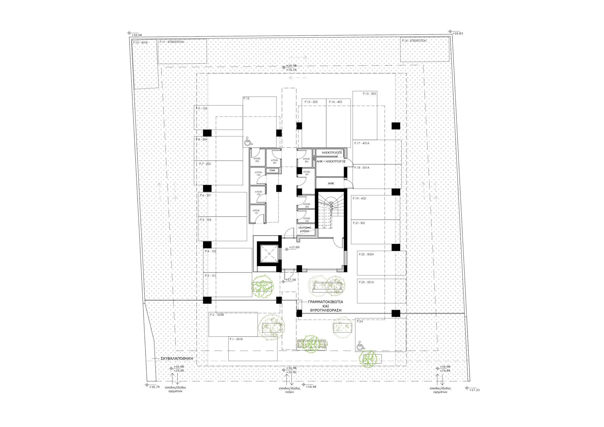
Introducing Garden Residences: Sixteen upscale apartments in the city center, just a few metersfrom the sea and opposite the Municipal Garden.This project seamlessly merges urban luxury with natural beauty, providing residents a tranquil retreat amidst city life.
With a prime location steps away from both the sea and the lush Municipal Garden, Garden Residences offers a unique and sophisticated living experience in the heart of the city.
Location
0.10 km
0.10 km
64.00 km
0.10 km
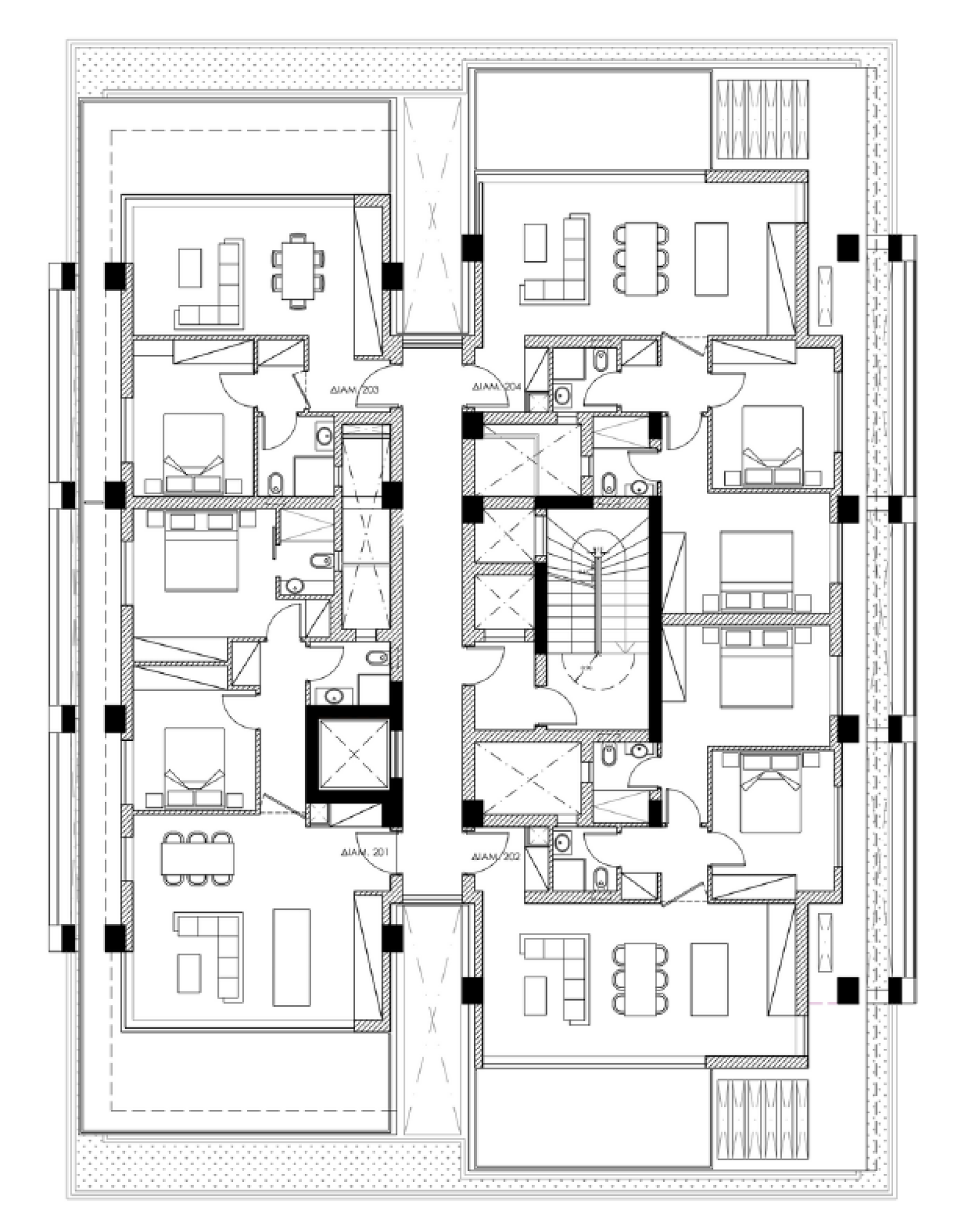
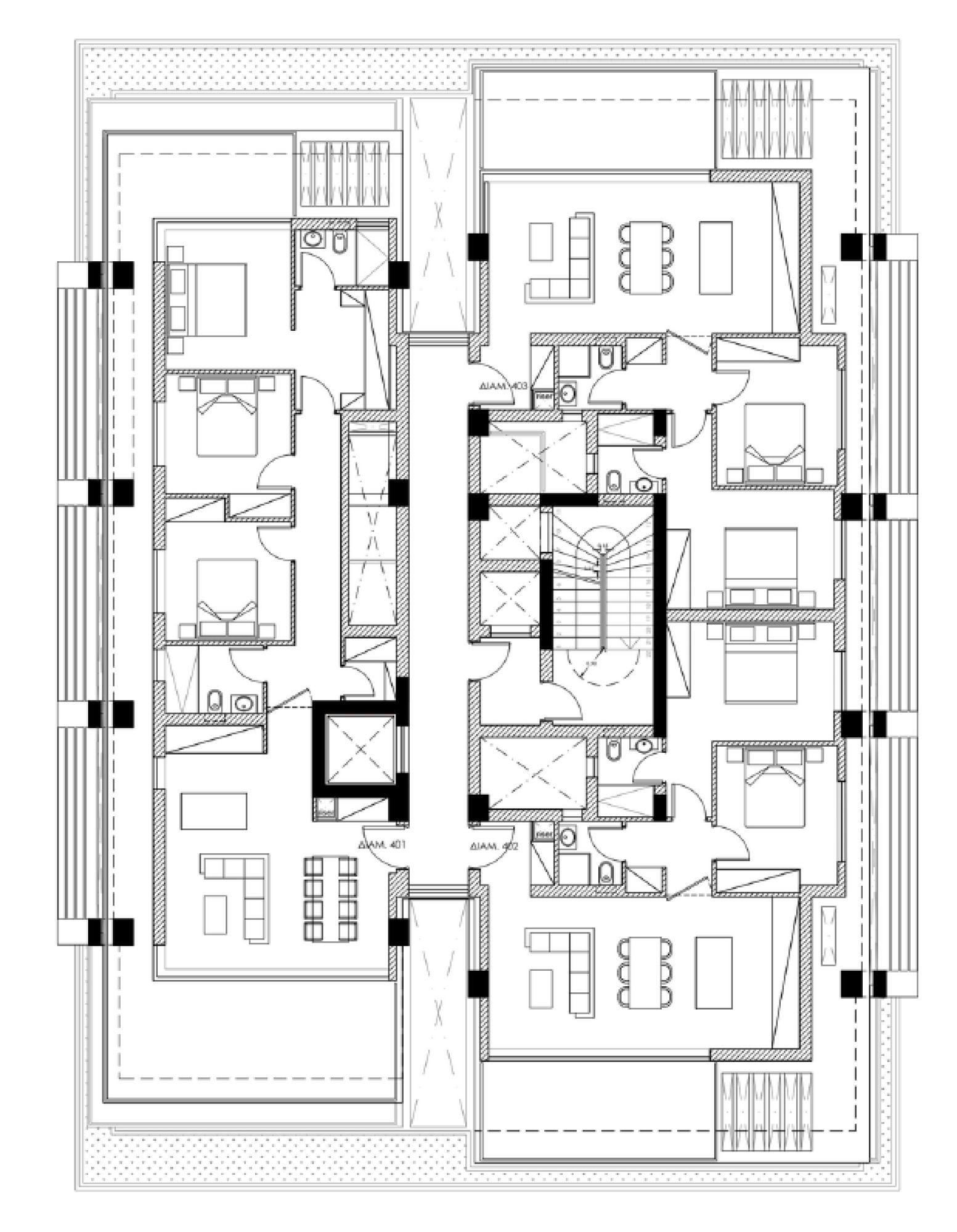
Unit No.
Floor
Beds
Baths
Covered Area
Parking
Storage